1900 State Road 16, St. Augustine, FL

$7,974,000

Previous Next

12.01

Acres

About 1900 State Road 16

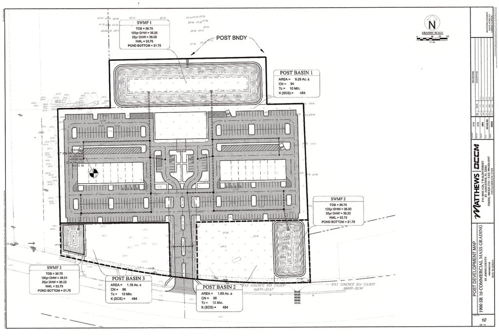
412 Feet of Frontage per each 3.5 acre parcel or 823.5 Frontage for both (per tax roll). This is directly on State Road 16 which is the Main Road in and out of Old St. Augustine, Fl. . On last review there were only two other larger parcels available in the area. One had 200 ft and the other 225 feet of Frontage on 16. Please note that the 1900 and the 1910 (Listing # 2114353) SR 16 listings are the same parcel of land with different approaches as to how it is marketed and developed. To be clear there are two engineer generated site plans in the works for this site depending on the developers vision and needs.Virtually all of SR 16 has become a High Demand/High Development Area. The vast majority of sites available two years ago are now in some phase of development.3 of the 4 new housing projects in the area have recently come directly to 16 (please see pics regarding these developments). The upscale Tapestry located just to the West of this site finished construction recently and is currently leasing. Another is nearing completion in the 1100 block of SR 16 while another in the 800 to 900 block of 16 finished clearing and plans to start construction in early Q1 2026. Two of the three new housing developments are for 300+ units. The fourth large housing development (Terrassa) is just North of 16 and E. of I-95 where the high end outlet mall used to be. Terrassa is also planned for over 300 luxury apts. This high growth area is in need of commercial retail and services to satisfy the Mushrooming demand. Due to the exposure this appears to be one of the very few larger sites remaining on SR 16 that would qualify as Prime. Other non-residential projects being built on 16 include a dental bldg w a coffee shop and an emergency care bldg in the 800 block. An exotic car dealership (Sunday Drive) is coming soon to the 2100 block of 16. Lastly Atlantic Marine is soon to build a new boat showroom in the 2200 block of SR 16. This 12 acre site is in the process of being planned and permitted for potential entitlements up to 100,000 sqft. In this 1900 SR 16 site plan there are two smaller outparcels of approx 1.3 acres in front ideal for QSR's (quick serve restaurants like Five Guys, Cava, BurgerFi or Panda Express, Drive-Thru coffee & Beverage Shops like Dutch Brothers or Ellianos, Banks-Credit Unions, Urgent Care/Medical Office/Vision Care i.e. America's Best Contacts, or Dental like Heartland or Deca Dental. Also needed is a Pharmacy w Drive-Thru. Specialty Retail like Mattress Firm, Auto Zone, O'Reilly's or Wireless Providers. Car washes like Mr. Clean, Tommy's Tidal Wave or Mister Car Wash. Also a good fit for auto accessory shops like Tint World, Black Optix, Line-X or Color Glo. With this 1900 SR 16 site plan, in back of the outparcels there will be two sets of strip stores on either side of the driveway. Both with drive thru end caps. These strips could offer the obvious needed services such as hair and nail salon, barber, dry cleaner, beauty supply, mini bank branches w atm machines, small sit down restaurants, pet care and grooming etc. In back of the strip stores there is a space that can accommodate a large structure with a footprint of 15,000 sqft and can go up to 5 stories. A structure like that would be ideal for Commercial Flex space, a hotel, or potentially a larger scale bed and breakfast built with an Old St. Augustine motif. A few other options include: Tech Schools, College Satellite facilities, Medical/profession office bldg, Top end (Covered) RV and Boat Storage, Large Scale Fitness Facility, Recreation facilities, Adult & Child Care Centers etc. Please check attached Zoning charts to confirm if your project applies. Although this property currently has a 3000 ft metal structure and two businesses on site W. of the drive, these are not necessarily being considered in the valuation of this property. In the alternate 1910 SR 16 site plan it is geared for the developer and end user looking to take maximum advantage of the top end traffic count of roughly 43K/day (see attachment line 93.2). Note there is a Median Cut already in place on 16 going directly into the drive providing easy access for customers going in either direction. There will be two buildable 3 acre sites on each side of the drive plus roughly a 1/2 acre retention pond in back of each for a total of 3.5 acres each side of drive. Your clients can purchase the full 7 acres or one full side (3.5 ac) or as little as 1.15 acres which includes their portion of the retention. Any which way you slice it your client can not possibly get better exposure than these sites afford. These full 3.5 acre sites will be ideal for your clients looking to build structures in the 15 to 30,000 ft range such as Convenience stores w gas pumps like Circle K, 7-11, Race Trac or even Buc-ee's. Other good fits are grocers like Trader Joe's, Sprouts, Fresh Market or the popular Fitness Studios. Zoning qualifies the site for auto sales which should include smaller Car Dealerships. The two businesses currently on site are an Auto Repair Shop and a Used Car Sales. Zoning in front portion is Commercial Intensive (CI) while the rear portion in (CHT) Commercial Highway Tourist It is Very Very Important Not to Disturb the Tenant!!

Features of 1900 State Road 16

MLS® # RX-11134403
Price $7,974,000
Acres 12.01
Type Land
Sub-Type Commercial Land
Style No
Status New

Community Information

Address 1900 State Road 16
Area 5940
Subdivision Ravenswood
City St. Augustine
County St. Johns
State FL
Zip Code 32084

Amenities

Utilities Cable, Electric, Municipal Sewer, Public Water
Is Waterfront No
Waterfront Pond

Exterior

Lot Description 11 to 25 Acres

Additional Information

Zoning CI & CHT
Foreclosure No
Short Sale No
RE / Bank Owned No

Listing Details

OfficeFlorida Homes Realty & Mortgag

Listing Map

Request a Showing

Provide a valid email address.
When would you like to view this property?